
Guadalajara Moderna / Colonia Americana
EFRAÍN GONZÁLEZ LUNA 1916
Entre Colonias y Progreso
Arquitecto: Álvaro Moragrega
Cliente: ?
Año de construcción: 2014
La revitalización de las Colonias Lafayette y Americana que se ha dado en los últimos 10 años, ha dado pie a la construcción de vivienda nueva en la zona por primera vez en 30 años. Como en otros lugares del mundo que se gentrifican, o «aburguesan» (chocante término este último), todo empieza por la transformación o re-habitación de casas y edificios caídos en desuso por artistas y estudiantes; le siguen la aparición de restaurantes, galerías y cafés; al final llegan los edificios de vivienda que atraen a una clase social media y media alta y la zona completa su transformación. Esperemos con orden, pues la aparición de Starbucks y viviendas de altos precios provoca que los comercios tradicionales que hacen estas zonas atractivas, desparezcan por las altas rentas y valores inmobiliarios que inevitablemente resultan.
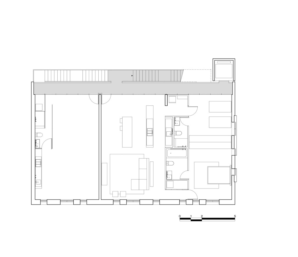
Este edificio de departamentos es un claro ejemplo del proceso en el que se encuentra actualmente la zona. Reemplazando una vivienda de mediados del siglo 20 y un lote baldío, la construcción de 6 pisos alberga departamentos de plantas semi-abiertas. La fachada fue diseñada para casi cerrarse al exterior, dejando ventanas pequeñas con celosías de acero que pueden abrirse o cerrarse (adicionalmente, la fachada sur recibe bastante sol casi todo el año). Por lo que el edificio realmente «ve» hacia adentro, hacia un patio donde la facada de ladrillo aparente del frente es reemplazada por una cortina de cristal de piso a techo. La pregunta es porqué, después de la ventana que ilumina y ventila las unidades, están las escaleras comunes que llevan hacia los departamentos, haciendo que la privacidad de las unidades sea parcial.
Aun así, el edificio merece el reconocimiento de que logra convivir armónicamente con el entorno, siendo discreto y de las proporciones de densidad y altura adecuadas para una zona que, si bien se beneficiará de recibir nuevos habitantes, tiene el riesgo de verse abrumada por edificios demasiado altos y densos, como el complejo de Horizontes Chapultepec, diseñado sin respeto y sin consideración urbana ni arquitectónica hacia la zona urbana donde se desplanta.













Un comentario en “Ficha: Efraín González Luna 1916”